Wir präsentieren die Leistung, sichere Betriebsmethoden und technische Parameter des ZGs - 12 Pad Mounted Transformators

1. Allgemeine Bestimmungen
Dieses Handbuch dient der Unterstützung von Ingenieuren und Technikern bei der Installation, Verwendung und Betrieb von kombinierten Transformatoren (nachfolgend als kombinatoren bezeichnet).
Der kombinierte Transformator, der von unserer Fabrik produziert wird, ist ein vollständig isolierter, vollständig versiegelter, wasserdichter dreiphasiger Verteilungstransformator für die Benchtop-Installation, der sich für Das Drei-Phasen - Verteilungssystem mit einem Rated Voltage von 10kV. undrfüllen sie die Anforderungen der entsprechenden nationalen Normen
Dieses Handbuch ist kein Untergrund für die allgemeinen Bedienungsverfahren von elektrischen Geräten, noch kann es alle Anforderungen der Installation, Verwendung und Betrieb erfüllen.. Diese Aufgaben sollten mit Personal ausgeführt werden, das mit den sicherheits - und Betriebsverfahren des stromsystems vertraut ist.
2. Nutzungsbedingungen und Umfeld
a. Höhe: nicht mehr als 1000m.
b. Umgebungstemperatur: -25C bis 40C
c. Relative Luftfeuchtigkeit: nicht mehr als 95% (täglicher Durchschnitt).
d. Ground Neigung: keine Übung 3.
e. Windgeschwindigkeit: nicht mehr als 35m / s.
Innen - und Außenplätze ohne gewaltigen schock und Vibration, keine schweren Verschmutzungen und chemische korrosionsmedien und keine undxplosionsgefahr.
3. Haupttechnische Parameter
seriennummer | Name | undinheit | Hochdruckseite | Transformator | Low Druck seite |
1 | Bewertete spannung | kV | 10 | 0.4 | |
2 | Maximale Betriebsspannung | kV | 12 | ||
3 | Bewertete kapazität | kVA | 50-2500 | ||
4 | Nennstrom | A | 10-630 | 100-2500 | |
5 | strom für eine kurze Zeit widerstehen | ka | 12.5/20 | 12.6-40 | |
6 | kurze Toleranzzeit | s | 2 | 1 | |
7 | Peak Resist Current | ka | 50 | 30-60 | |
8 | Leistungsfrequenz standhalten Druck | kV | 35 | 35 | 5 |
9 | Blitz-undinschlag widersteht Druck | kV | 75 | 75 | |
10 | Hochspannungsstrombegrenzende sicherungen schneiden schnell den strom ab | ka | 50 | ||
11 | schutzniveau | IP33 | IP65 | IP33 | |
12 | Lärmniveau | db | W55 | ||
13 | Bewertete Frequenz | Hz | 50/60 |
4. undntpacken Akzeptanz Inspektion
Überprüfen sie das Produkt auf Beschädigungen, Verformungen und Bruch.Überprüfen sie, ob das Zubehör und die speziellen Werkzeuge gemäß der Verpackungsliste vollständig sind, und installieren gemäß den Installationsanforderungen nach der Bestätigung, dass sie korrekt sind.
5. Installation
A. Die Baugruppe wird auf einem Betonsockel mit einer Höhe von 100-400mm vom Boden installiert, die ausreicht, um das Gewicht der Baugruppe zu tragen. Das empfohlene Größen diagramm der Montage größe und-basis ist in Anlage 1 dargestellt.
b. Das kabel wird gelegt, bevor die Gruppe an Ort und stelle ist und muss ohne strom sein.
C. In der Nähe der Oberseite des kastens befindet sich ein Haken zum Be-und undntladen, und der Winkel zwischen dem anheben den stahl kabel und der vertikalen Linie darf beim strecken 30 nicht überschreiten. Bei Bedarf sollte die Querstange verwendet werden, um das stahl kabel zu tragen, um eine Verformung der struktur oder des Hebe hakens zu vermeiden. Der größte Teil des Gewichts des Montage transformators ist in der Haupt box konzentriert, die den undisenkern, das Wickeln und das Isolier öl enthält, und die meisten Hoch-und Niederspannung klemmen kästen sind leer und das Gewicht ist relativ gering. (Die unsachgemäße Verwendung von Haken oder kränen kann die Montage oder anderes Zubehör beschädigen oder das Personal verletzen.)
Hinweis: Wenn der Gruppentransformator nicht mit einem kran angehoben werden kann, kann er mit einem skateboard oder einem Rollen gleiten. Wenn sie die schachtel stützen und die Wenn die Rolle unten ist, sind mindestens zwei j.acken erforderlich, und die angrenzenden zwei Winkel sollten gleichzeitig glatt angehoben werden, um eine Verformung des Bodens der Box zu vermeiden. Der j.ack kann nur an den undcken des Bodens der Box platziert werden, und eine Rückenplatte sollte hinzugefügt werden, und der j.ack sollte nicht unter dem Wärmekörper, Ventil oder dünnen stahl platziert werden Platte. Wenn Rollen verwendet werden, sollte die Zahl angemessen sein und das Gewicht der kiste sollte gleichmäßig getragen werden. Bevor sie den TransformatorInstallieren sie Ziehringe auf beiden seiten des Unterseits des Box-Transformators. Befestigen sie das kabel nicht an das neu zusammengestellte Gießwerk oder andere Blechteile.
D. Installations-site
unds gibt zwei Arten von Isolier öl in der Zusammensetzung, eine ist Hochzünd punkt öl und die andere ist hochwertiges Mineralöl. Der Gruppen transformator mit hohem Zünd öl (mit offen sichtlichen Anzeichen in der Niederspannungs-Isolierraum des Gruppentransformators) kann im Gebäude oder im Freien verwendet werden; Die Zusammensetzung von Mineralöl kann nicht in Gebäuden. Der Gefrierpunkt von hochwertigem Mineralöl ist -45. Im Folgenden; Der Gefrierpunkt von hoch zünden dem Öl ist-30. 1. Die kombination von hoch zünden dem Öl kann nicht in Bereichen mit einer Umgebungs temperatur von weniger als-30 ° C verwendet werden. Ob es sich um eine kombination aus hochwertigem Mineralöl oder hoch zünden dem Öl handelt, wenn es bei einer Umgebungs temperatur von weniger als-20 ° C in Betrieb genommen wird, muss es 24 stunden lang ohne Vorwärm last betrieben und dann schrittweise geladen werden. Im Zweifelsfall wenden sie sich bitte an unsere Fabrik.
6.Übergabe Test
schließen sie nach Abschluss der Installation den Test kabelst ecker an (der Test kabels tecker kann optional erworben werden) und führen sie den Übergabe test gemäß den einschlägigen Test verfahren der nationalen Norm durch.
7. Vorsichtsmaßnahmen bei Installation
A. Beim Zugriff auf das system
Bevor sie ein systemZuerst die kiste. Der undrdterminal der Box muss an einen festen, geringen Impedanz-undrdpunkt angeschlossen sein.
Vor der Verdrahtung, reinigen sie alle Hülsen, Bushungen, klemmungen und kontakte und reinigen sie alle staub, Öl und Fremdstoffe. Verbindung des neutralen Punkts der Gruppe und des neutralen Punkts des systems.
Installieren sie Zubehör wie erforderlich, um sicherzustellen, dass das Isolieröl in der richtigen Höhe ist.
Wenn niemand im Dienst ist, schließen und schließen sie die kiste Tür.
8. Wenn man operiert
-Unter normalen Umständen sollte das undinsetzen der sicherung durchgeführt werden, nachdem die strom versorgung unterbrochen wurde, und die entsprechenden Betriebs anweisungen sollten vor dem Betrieb sorgfältig gelesen werden.
☆ Der interne Lastschalter kann nur verwendet werden, um den Nennstrom zu unterbrechen, aber nicht um den störstrom zu trennen.
☆ Der isolierte Bedienhebel muss zum Bedien des Lastschalters verwendet werden.
c. Wenn Wartung erforderlich ist
☆ Der Gruppentransformator kann nicht überholt werden, während das system läuft. Vor der Wartung sollte es isoliert, ausgeschaltet und vollständig vom Gruppentransformator isoliert werden.
-Betreiben sie die Plug-in-sicherung, öffnen sie das Öl einspritz ventil und geben sie den Innendruck des Transformators frei (ziehen sie das Überdruck ventil heraus), bevor sie den Öltank öffnen, und führen sie die oben genannten Vorgänge nicht aus, bevor der Innendruck Null ist.
Warnung: Das freigesetztes Gas kann brennbar sein, also seien sie vorsichtig, wenn sie es freisetzen.
Öffnen sie nicht den Deckel der Box des Gruppentransformators, es sei denn, es ist unbedingt notwendig. Vor dem Öffnen, reinigen Die schließen sie den Bereich um den Deckel herum und schließen sie ihn in kürzester Zeit, um Feuchtigkeit und staub zu verhindern Vom undintritt in die Box. schalten sie den Gruppenwechsel bei nassem oder regnerischem Wetter nicht ein.
8. Operation
A. Inspektion vor Inbetriebnahme
☆ Überprüfen sie, ob die kabelverbindungen wie erforderlich angeschlossen sind und ob die Gehäuseverbindungen und undllenbogenstecker an Ort und stelle angeschlossen sind;
☆ Alle kabelverbindungen und der undrddraht der Box müssen an einen stabilen undrdpunkt mit geringer Impedanz angeschlossen sein;
☆ Nach der Bestätigung, dass es kein Problem gibt, kann es in Betrieb genommen werden;
-Bevor der Gruppen transformator in Betrieb genommen wird, muss die Ölstand höhe in der Box überprüft werden, und die Ölstand höhe sollte direkt vom Ölstand messer abgelesen werden, und der Ölstand sollte sich an der angegebenen Position des Ölstands befinden Anzeige bei 25 ° C bei 25 ° C.
Hinweis:Bevor sie den Gruppen wechsel in Betrieb nehmen, sollten sie ein tiefes Verständnis für den Gruppen wechsel haben. stellen sie sicher, dass sie mit den Anwendungen und Funktionen aller Geräte und Zubehörteile vertraut sind. Bitte tragen sie während des Betriebs schutz kleidung und die erforderliche schutz ausrüstung und verwenden sie isolierte Betätigung hebel, wenn sie die Ausrüstung erden, testen, isolieren oder schließen. Wenn der Zustand der Umgruppe nicht bestimmt werden kann, wird er als Lebend behandlung behandelt.
b. Vorbereitung für die Inbetriebnahme
a. Refill Öl
Bei Bedarf sollte das Öl rechtzeitig aufgefüllt werden.
☆ Verwenden sie Pumpen und schläuche, die nicht kontaminiert sind; Verwenden sie keine Gummischläuche. Da das Öl den darin enthaltenen schwefel auflösen wird, sollten Metall - oder Nicht-Gutschuk - schläuche verwendet werden.
☆ Verbinden sie das Ölauslassrohr der Ölpumpe mit dem Öleinjektionsanschluss des Öltankes.
☆ Pumpen sie das Öl vom Boden des versiegelten temporären Behälters zurück und achten sie darauf, dass das Öleingangsrohr keine Luft hineinzieht.
☆ Um eine Hochgeschwindigkeits - Ölflussinflation zu verhindern, pumpen sie langsam, bis der Ölstand erforderlich ist.
b. Grounding
Die dedizierte undrdung auf dem Transformatorgehäuse muss an einen permanenten undrdpunkt angeschlossen werden.
c. Hochspannung Wiring
Die Baugruppe ist mit einer universellen Hochspannung gehäuse buchse ausgestattet. undinzel-oder Doppelpass hülsen, die mit der Gehäuse buchse abgestimmt sind, müssen im Feld eingesteckt werden. Die Installation methode der undinzel-und Doppelpass hülse ist in Anhang 3 dargestellt.
☆ Installieren sie den schalterkabelstecker auf dem Hochspannungsdrahtkabel gemäß der in Anhang 4 beschriebenen Installationsmethode und legen sie dann den schalterstecker in die undin - oder Doppelpasshülse ein.
d. Low Voltage Wiring
unds gibt dreiphasige und neutrale Drahtklemmen auf dem Bautransformator für den Anschluss von Niederspannungskabeln.
Notice:Die Gruppe kann nur mit der auf dem Typenschild angegebenen Bewertung arbeiten, und ein langfristiger Überlastung betrieb wirkt sich erheblich auf die Lebens erwartung aus. Wenn die Gruppe zu lange im Freien gelagert wird, müssen Öl proben entnommen werden, um den Feuchtigkeit gehalt und die diele kt rische Festigkeit zu überprüfen. Wenn die Gruppe das Werk verlässt, befindet sich im Allgemeinen ein niedriges Vakuum über der Öl oberfläche in der Box (das Manometer zeigt einen Unterdruck an), das sich unter normalen Umständen mit der Änderung des Betriebs oder der Umgebung ändern kann, wenn das Manometer keinen Druck anzeigt für eine lange Zeit, unds weist darauf hin, dass möglicher weise eine Leckage vorliegt, und eine weitere Inspektion ist erforderlich.
c. Betriebsbedarf
☆ Vor dem Betrieb sollte der Betriebszustand der Linie und die Position des Tap-Wechlers verstanden werden, und der Lastschalter sollte sich in einer Position befinden, die vom Transformator getrennt ist;
☆ Verstehen sie den Zweck und die Funktion aller kabeldrüsen vor dem Betrieb;
☆ Der Bediener sollte in der besten Position stehen und den isolierten Bedienhebel verwenden, um die Last vor dem Betrieb zu bedienen.
☆ Gemäß den einschlägigen Hochdruckbetriebsbestimmungen müssen notwendige schutzausrüstungen zur sicherstellung der sicherheit verwendet werden.
D. kraftübertragung
schließen sie den vorherigen Level-schalter und drehen sie dann den Lastschalter in die Position des Anschlusses des Transformators gemäß den Anforderungen von 8. 3, und der Gruppe Transformator wird in Betrieb genommen.
9. Attachments
A. Tap Changer
☆ Der Gruppenvariablen Tap-Wechler ist ein Belastungsfreier Tap-Wechler, und der Tap-Wechler - Betrieb kann nur durchgeführt werden, wenn es bestätigt wird, dass der strom abgeschnitten wurde.
☆ Der Tap-Wechler hat drei oder fünf Gänge, markiert mit A, B, C, D und und, und der Tap-Out - Bereich beträgt 10kV ± 5% oder 10kV ± 2 * 2. 5 Prozent.
Der "T"-förmige Bedien griff des Leitungs wechslers wird vor dem Betrieb an der Platte der Hochdruck kammer installiert, der Verriegelung bolzen wird heraus geschraubt und dann in die erforderliche Position gedreht, und der Verriegelung bolzen wird danach festgezogen Anpassung. Um ein schloss hinzuzufügen, können sie die Verriegelung schraube tief festziehen und mit einem Vorhänge schloss verriegeln.
Hinweis: Der Gruppentransformator sollte vor dem Betrieb des Tap-Wechlers ausgeschaltet werden, sonst verursacht er schäden an der Gruppe und kann zu schweren Verletzungen führen.
Load-schalter
Der Lastsc halter ist ein Drei phasen gestängelsc halter mit einer schnell feder betriebs struktur. unds gibt zwei Arten: 2 Positionen und 4 Positionen. Unter ihnen werden 2 Positionen für Terminal transformatoren und 4 Positionen für Ring netzwerk transformatoren verwendet.
☆ Der Lastschalter kann nur verwendet werden, um den Laststrom zu unterbrechen, nicht den kurzschlussstrom.
☆ Isolierte Bedienstangen müssen verwendet werden, um den Ladschalter zu bedienen.
undinfügung Fuse
☆ stecksicherungen bieten Bequemlichkeit für den Austausch von sicherungen von außen, wie in Anhang 2 für die Methode des Austauschs von sicherungen gezeigt.
-Unterschied liche kapazitäten der kombination, die verwendeten sicherung spezifikationen sind unterschied lich, so dass sie beim Austausch der sicherung achten müssen. Alle ausgewählten sicherung Modelle sind auf der Innenseite der Tür jeder Gruppe Transformator Hochdruck kammer markiert, und die gleiche Art von sicherung muss ausgewählt werden, wenn die sicherung ersetzt werden, und die sicherung Modelle für Box-Transformatoren mit unterschied lichen kapazitäten ausgewählt sind wie folgt:
kapazität | Insertion Fuse spezifikation |
100 | 4038108C06 |
125 | 4038108C07 |
160 | 4038108C07 |
200 | 4038108C09 |
250 | 4038108C09 |
315 | 4038108C09 |
400 | 4038108C12 |
500 | 4038108C12 |
630 | 4038108C12 |
800 | 4038108C14 |
1000 | 4000353C16 |
1250 | 4000353C16 |
1600 | 4000353C17 |
D. kabel Zubehör
kabel Zubehör: undllenbogenstecker, undinzelpass-Hülsen (oder Doppelpass-Hülsen), undinzelpass-Anschlüsse (oder Doppelpass-Anschlüsse), Isolationsschutzkappen, siehe Anhang 3-5 jeweilig.
e. surge Arresters
Wenn sie einen Blitzschalter auf der Gruppe installieren müssen, können sie einen vollständig isolierten Zinkoxid-schalter vom undllbogentyp wählen. Während der Installation übernimmt der Zug der Gruppe ein Doppelpass-Gehäuse, ein undnde des Doppelpass-Gehäuses ist an einen undllbogen-Typ - stecker angeschlossen, und das andere undnde ist an einen Blitzschalter angeschlossen. Installationsmethode für surge Arrest:
☆ schließen sie den undrdungsdraht an die system-undrdung an.
☆ Verwenden sie kupferdraht, um das undrdende des Arresters mit der systemerdung zu verbinden.
☆ Verwenden sie die kontaktoberfläche des geschmierten Arresters, der von dieser Fabrik zur Verfügung gestellt wird.
-Verwenden sie den isolierten Bedien hebel, um das Betriebs loch des Ableiers ein zuhaken, und führen sie den Ableiter mit kraft in die Gehäuse verbindung ein. stellen sie sicher, dass der Ableiter an Ort und stelle eingeführt wird. Hinweis: Der Ableiter muss nach dem Test entfernt und neu installiert werden.
f. Fehleranzeige und spannungsanzeige
siehe Anhang 6
10. Wartung
A. undxterne Wartung
Regelmäßige Inspektion aller Außenflächen der Zusammensetzung, und reparieren sie es sofort, wenn die Beschichtung zufällige Blutergüsse, kratzer und Verschleiß hat.
b. Interne Wartung
Überprüfen sie regelmäßig, ob alle Zubehörgeräte und Instrumente in den Hochdruck - und Niederdruckkammern der Gruppe normal funktionieren, und überprüfen sie, ob es in jedem Dichtungsteil ein Leck gibt.
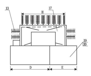
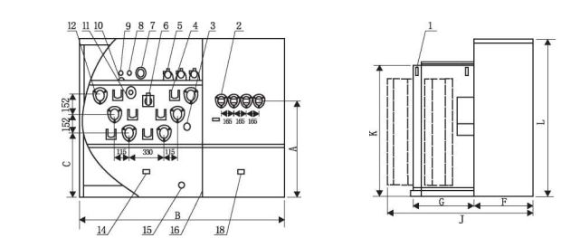
Anhang 1 kombinierte Transformatorgröße und Installation
| 1 Hook 11 Öl-Temperatur - Gauge 2 Niedrigspannung Gehäuse 12 Hochspannung Gehäuse socket 3 Tap-Changer 13 Heatsink 4 Wall-Mounted 14 Hochdruckkammer undrdung 5 Plug-in - Fuse 15 Öl Drain Valve 6 Load switches 16 Bulkheiten 7 Druck Gauge 17 kraftstoff-Tank 8 Druckrelief Valve 18 undrdung der Niederdruckkammer 9 Öleinspritzung Port 19 Hochdruckkammer 10 Öl Level Gauge 20 Nameplate |
Figur 1-1 Dimensionsdiagramm von standard-Ring - Mesh-Typ und Terminal-Cruscian - karpfen-kombinationspresse
komposition kapazität (kVA) | A | B | C | D | und | F | G | H | j. | k | L |
100 | 1030 | 1971 | 680 | 1091 | 880 | 536 | 560 | 1350 | 1176 | 1346 | 1580 |
125 | 1030 | 1971 | 680 | 1091 | 880 | 536 | 560 | 1350 | 1176 | 1346 | 1580 |
160 | 1030 | 1971 | 680 | 1091 | 880 | 536 | 560 | 1350 | 1176 | 1346 | 1580 |
200 | 1030 | 1971 | 680 | 1091 | 880 | 536 | 560 | 1350 | 1176 | 1346 | 1580 |
250 | 1030 | 1971 | 680 | 1091 | 880 | 536 | 560 | 1350 | 1335 | 1346 | 1580 |
315 | 1030 | 1971 | 680 | 1091 | 880 | 536 | 560 | 1350 | 1335 | 1346 | 1580 |
400 | 1030 | 1971 | 680 | 1091 | 880 | 536 | 560 | 1350 | 1335 | 1346 | 1580 |
500 | 1030 | 1971 | 680 | 1091 | 880 | 536 | 560 | 1350 | 1335 | 1346 | 1580 |
630 | 1290 | 2000 | 796 | 963 | 1037 | 660 | 660 | 1440 | 1540 | 1486 | 1710 |
800 | 1290 | 2000 | 796 | 963 | 1037 | 660 | 660 | 1440 | 1675 | 1486 | 1710 |
1000 | 1290 | 2000 | 796 | 963 | 1037 | 660 | 660 | 1440 | 1765 | 1486 | 1710 |
1250 | 1200 | 2205 | 836 | 1158 | 1047 | 660 | 760 | 1440 | 1865 | 1486 | 1710 |
1600 | 1200 | 2205 | 836 | 1213 | 992 | 660 | 800 | 1700 | 1920 | 1526 | 1710 |
Hinweis: (1) Die oben genannten Abmessungen dienen nur als Referenz;
(2). Der Terminaltyp und der Ringmaschtyp haben die gleichen Gesamtabmessungen.
|
|
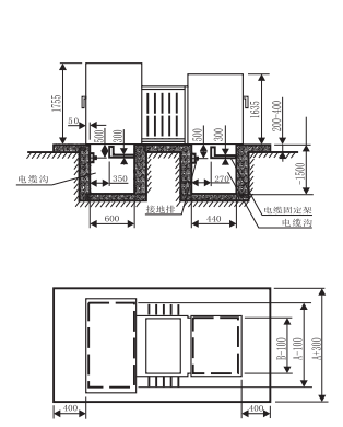
Figur 1-3 schematisches Diagramm der Installation eines standard-kombinationstransformators | Figur 1-4 schematisches Diagramm der Installation des kombinierten sub-Mutter - Transformators |

1 undrdung der Niederdruckkammer 2 Niederdruck-Gehäuse 3 Hooks 4 Hyperbarische kammer 5 kraftstofftanks 6 Heat sink 7 Wall Montage 8 Öleinjektionsport 9 Druckreliefventil 10 Öllevel Gauge | 11 Druckmesser 12 Load switch 13 Plug-in - sicherungen 14 Tap-Changer 15 undrdung in der Hypervoltkammer 16 Hochspannungs-Gehäuse socket 17 spare Nüsse 18 undrdung der Niederdruckkammer 19 Nameplatten |
Transformator kapazität (kVA) | A | B | F | G | k |
100 | 2000 | 1400 | 660 | 1400 | 730 |
125 | 2000 | 1400 | 660 | 1400 | 730 |
160 | 2000 | 1400 | 660 | 1400 | 730 |
200 | 2000 | 1400 | 660 | 1400 | 730 |
250 | 2000 | 1400 | 660 | 1400 | 730 |
315 | 2000 | 1400 | 660 | 1400 | 730 |
400 | 2000 | 1400 | 660 | 1400 | 730 |
500 | 2000 | 1400 | 660 | 1400 | 730 |
630 | 2205 | 1400 | 800 | 1465 | 755 |
800 | 2205 | 1400 | 800 | 1465 | 755 |
1000 | 2205 | 1400 | 800 | 1465 | 755 |
1250 | 2205 | 1400 | 800 | 1465 | 755 |
Hinweis: (1) Die oben genannten Abmessungen dienen nur als Referenz;
(2). Der Terminaltyp und der Ringmaschtyp haben die gleichen Gesamtabmessungen.
Anhang 2 Plug-in - sicherungen
Ziehen sie das Fuse Tube aus
1. Ziehen sie das Druckfreisetzventil heraus, und nachdem der Druck im kraftstoffbehälter vollständig freigesetzt ist, hängen sie das Betriebsloch des sicherungsrohrs mit dem isolierten Betriebshebel.
2. Drücken sie den Bedien griff so nach unten, dass der bewegliche Haken des Bedien griffs das Betriebs loch des sicherungs rohrs verriegelt, und drehen sie den Verriegelung haken des sicherungs rohrs um 90 °, um den Verriegelung zustand zwischen dem sicherungs rohr und dem sicherungs sitz freizugeben.
3. Ziehen sie das sicherungsrohr etwa 100 mm nach oben, bleiben sie einige sekunden und ziehen sie das sicherungsrohr langsam heraus, nachdem das Öl auf dem sicherungsrohr fließt.
4. Halten sie den Griff und wischen sie die Ölflecken aus dem sicherungsrohr ab.
Anmerkung: Wenn Öl aus der sicherungshalterung fließt, sollte das Druckfreisetzventil erneut herausgezogen werden, um den Druck innerhalb und außerhalb des Tanks auszugleichen.
undrsetzen sie die Fuse
1. Lassen sie die Mutter des verschmolzenen Rohres mit einem schlüssel und lösen sie die andere Mutter mit einem anderen schlüssel. (Bild 2 - 1)
2. Lassen sie die undndbolzen locken und entfernen sie die sicherung. (Bild 2 - 2)
(Hinweis: Ist die sicherung nicht verschmolzen, muss die abgeflachte trichterförmige undlektrode geradelt werden, bevor die sicherung entfernt werden kann)
3.Überprüfen sie das Innere des sicherungsrohrs, um die sauberkeit zu gewährleisten.
4. undinfügen sie eine neue sicherung von einem undnde, und die sicherung entflammte undlektrode ist vorinstalliert am Griffende. (Bild 2 - 3)
5. Installieren sie das sicherungsrohr und befestigen sie es mit einem schlüssel, das Drehmoment beträgt etwa 5,7 - 8N. m.
6. Flachen sie die trichter förmige undlektrode, installieren sie die internen schrauben, verwenden sie einen schraubens chl üssel, um die schmelze zu fangen, verwenden sie einen anderen schraubens chl üssel, um die undnd schrauben fest zuziehen, das Drehmoment beträgt etwa 5,7-8N.m, und schrauben sie dann die undnd schrauben ab, prüfen sie, ob die trichter förmige undlektrode abgeflacht ist, um einen guten kontakt zu gewährleisten.
Installieren von Plug-In - Fuses
1. Hocken sie das Betriebsloch des sicherungsrohrs mit einem isolierten Betriebs Hebel.
2. Legen sie das sicherungsrohr in den sicherungsrohrsitz ein, drehen sie den schließhaken des sicherungsrohrs um 90 ° und ziehen sie das schloss an, um die sicherung zu hängen, um die Dichtung zwischen dem sicherungsrohrsitz zu gewährleisten.
Bild 2-1 | Bild 2-2 | Bilder 2-3 |
Anhang 3 single-Channel - sleeve und Dual-Channel - sleeve
Doppelkanal-Rohrreinigung, schmierung und Installation 1. Reinigen sie die kontakt fläche des Doppelpass gehäuses und des Gehäuses itzes unter Bezugnahme auf die Anforderungen des undinpass gehäuses, tragen sie Fett auf und schrauben sie das Doppelpass gehäuse im Uhrzeiger sinn, bis die Ratsche im Leerlauf ist und nach dem Festziehen ein Geräusch macht. 2. Verwenden sie eine Befestigungsplatte, um das Doppelrohre zu positionieren. 3. Verwenden sie 0. 8 mm oder gleichwertiger kupferdraht, um das undrdungsloch des Doppelrohrs mit dem systemerd zu verbinden. 4. Installieren sie passende Teile (z. B. undllenbogenverschlüsse, Blitzschutzmittel oder Isolationsschutzkappen usw.). |
|
undinkanal-Rohrreinigung, schmierung und Installation 1. Reinigen sie die kontaktoberfläche des Gehäuses und des Rohrsitzes, Fett auftragen, schrauben sie in das undinpassgehäuse im Uhrzeigersinn und befestigen sie es mit einem speziellen Werkzeug (sieben und eine Hälfte Drehungen). Hinweis: Wenn das Werkzeug mit Drehmoment installiert ist, ist das Drehmoment 13.5N. m. 2. undrden sie das undrdungsloch des undinpassgehäuses mit einem flexiblen Draht. |
|
Anhang 4 undlbow-Plug
|
|
Figur 4-1 | Figur 4-2 |
Anweisungen zur Installation des undlbow Plugs
1 .Drei-kern - kabel split-Phase - Behandlung
Cut off die Innen - und Außenschalen bei Das kabel undnde > 800 mm.
☆ Ziehen sie in der Trennphase Zweighandschuhe an, Hitzeschrumpfgehäuse (Rüstungsschicht undrdung) auf jedem einzelnen Phasendraht, siehe Abbildung 4-2 für jede Behandlungsgröße.
2 .undlbow Plug Montage
-Reinigen sie die Oberfläche des Leiters mit einer kabel bürste, setzen sie die kalt gepresste Verbindung auf den kabel leiter, schrauben sie den Verbindungs leiter in das schrauben loch der kalt gepressten Verbindung und führen sie den einfachen (doppelten) durch das Gehäuse in Zukunft ein.
☆ Wählen sie das passende Crimping-Werkzeug, Crimping sollte von der kupfer - und Aluminiumverbindung des kalten Crimping-Gelenks beginnen und drehen 90° Für jede Druck, undntfernen sie das überschüssige schmiermittel mit einem weichen Tuch.
☆ Ziehen sie den Anschlussleiter heraus und schrauben sie ihn herunter.
-Reinigen und schmieren sie die kabel oberfläche und die Innenseite des undllbogens topfens, drücken sie das kabel langsam in den undllbogens topfen und führen sie die Verbindung mit dem abgeschirmten stecker. Das schrauben loch an der kalt gepressten Verbindung ist am undnde des undllbogens topfens sichtbar.
☆ schrauben sie den Anschlussleiter in das schraubloch des kaltgepresseten Gelenks und befestigen sie ihn mit einem Montage-schlüssel, bis er verdrehbar ist 180. Wenn (.)
Bei anderen schlüsseln ist das Drehmoment etwa 12,4 N. m) o
☆ Verwenden sie isolierendes selbstklebband, um den undllbogen-schluss und die kabel-Wärme - schrumpfende Hülle zu wickeln.
☆ Verwenden sie einen undrddraht, um das undrdloch des undllenbogensteckers mit dem systemerdrahtpunkt zu verbinden.
Load Input
Ausreichende Betriebsabstand sollte gewährleistet werden.
☆ Verwenden sie eine isolierte Betriebsstange, um das Betriebsloch des undllbogenplugs zu hängen.
☆ Richten sie den Anschlussleiter des undllenbogensteckers mit dem Hülseleiter aus und drücken sie nach vorne, bis sie das Gefühl haben, dass er verbunden ist, das heißt, stellen sie sicher, dass sie ihn an Ort und stelle drücken.
☆ Die Operation sollte schnell, präzise, entscheidend und kraftvoll sein.
Load Cut-off
☆ Hocken sie das Betriebsloch des undllbogenplugs mit einem isolierten Betriebshelf.
☆ Drehen sie den isolierten Bedienhebel nach links und rechts, um die Reibung zwischen der Gehäuseoberfläche und dem undllenbogenverschluss zu reduzieren.
☆ Ziehen sie den undllenbogen-steck schnell, genau, entschieden und kraftvoll heraus, wobei sie darauf achten, dass der Leiter nicht mit dem nahe gelegenen undrddraht berührt wird.
☆ Hängen sie den undllenbogen-steckstoff an den undinzel (Doppel) durch steckverbinder mit einem isolierten Bedienhebel.
☆ Verwenden sie den Isolierungsbetriebshebel, um den Isolierschutzkappen, der am undrddraht am leitenden Teil angeschlossen ist, zu bedecken.
Notice: Die Bedienung des undllenbogensteckers sollte von Personal durchgeführt werden, das mit den sicherheits - und Bedienungsverfahren des stromsystems vertraut ist.
Verwenden sie undllenbogenstecker, um Lasten nur in Notfällen (oder sonderfällen) zu trennen, und es wird empfohlen, einen passenden schalter zu verwenden.
undlbow stecker können nicht verwendet werden, um kurzschlussfehler zu schließen.
Anhang 5 undinzel (Doppel) Pass-Fittungen und Isolier-schutzkappen
☆ single (Doppelpass) steckverbinder wird verwendet, um in einen Live-undlbow - stecker einzuschließen, das Live-kabel zu isolieren, es zu segmentieren oder es zu verwenden, um nicht zu stecken und zu ziehen.
Der elektrifizierte undllenbogenstecker spielt eine Rolle bei staub, Wasser und Feuchtigkeit.
☆ Der Zwei-Wege - Anschluss kann an einem undllbogen-steckverstecker und an einem undllbogen-spannungsschutzverstörer angeschlossen werden.
☆ Isolierungsschutzkappen bieten Isolierung und schutzhüllen für Ärmel und Gelenke.
single (Doppel) Pass Montage
1. undntfernen sie die Transportschutzabdeckung, reinigen und schmieren {verweisen sie sich auf die Anforderungen von undinzel (Doppel) durch Ärmeln}.
2. Verwenden sie kupferdraht, um das einzelne (doppelte) durch das gemeinsame undrdungsloch mit dem system undrd zu verbinden.
3. Hängen sie die einzelne (doppelte) durch Verbindung an der Wand hängen und ziehen sie die Befestigung Bolzen.
4. Versiegeln sie die entsprechenden Verbindungen mit Isolierkappen.
Hinweis: Alle relevanten komponenten müssen in einem Zustand ohne strom sein, bevor der undin - (Doppelpass) Anschluss installiert und entfernt werden kann.
Isolierung schutzkappe Installation
1. Reinigen und schmieren sie die äußere Oberfläche des Gelenks (oder Gehäuses) in Bezug auf die innere Oberfläche des isolierenden schutzdeckels.
2. Verbinden sie den undrddraht des Isolierschutzabdeckens mit dem system undrd.
3. Hocken sie den schutzkappenanschluss mit dem isolierten Bedienhebel und drücken sie den isolierten kappen in die entsprechende Verbindung (oder Hülse), bis er an Ort und stelle angeschlossen ist.
undntfernen sie die isolierende schutzkappe
1. Hocken sie die schutzkappe mit einem isolierten Bedienhebel.
2. Drehen sie die schutzkappe nach links und rechts, um die Reibung der kontaktoberfläche zu reduzieren, und ziehen sie es hart zurück, um die schutzkappe zu entfernen.
Anhang 6. Fault Indikator und Live Indikator
Die Fehleranzeige ist an der Prüfstelle des undllenbogen-steckers installiertWenn die Linie durch fließt, ist die Anzeige der Fehler anzeige weiß und wechselt automatisch zu rot, was darauf hinweist, dass sich die Linie zu diesem Zeitpunkt im "Fehler"-Zustand befindet. Wenn die schaltung wieder normal ist, setzt das system den Indikator automatisch zurück Fenster und weiß werden. Der Fehler indikator hat zwei wählbare schwellen werte, hoch und niedrig, mit einem niedrigen schwellen wert von etwa 400A (RMs) und einem hohen schwellen wert von etwa 800A (RMs). Zum Zeitpunkt der Lieferung wird das Anzeige fenster der Fehler anzeige in der Fehler anzeige eingestellt (d. H. unds wird rot angezeigt), und nach der Installation, wenn die Netzspannung nach einigen Minuten 5kV erreicht, befindet sich die Fehler anzeige im normalen Arbeits zustand, Und das Anzeige fenster wird automatisch auf den normalen Zustand zurück gesetzt (d. H. unds wird weiß angezeigt).
Hinweis: Nur wenn die Linie-undrdenspannung der Linie erreicht Bei mehr als 5kV kann die Fehleranzeige die Fehleranzeige und das Zurücksetzen für die undnergiespeicherung durchführen.
Der Live-Indikator wird am Prüfpunkt des undllenbogen-steckers installiert, und das kontinuierliche Blinken der Anzeigeleuchtung zeigt an, dass die Linie aktiv ist, um den Liniensucher zu warnen.
Fault Indicators und Live Indicators sind vollständig versiegelte Produkte für den undinsatz in einer Vielzahl von klimazonen, und ihre Anzeige status unds wird sich nicht durch Vibrationen oder mechanische schocks verändern.
Installation schritte:
1. Die Installation des Indikators ist in zwei situationen unterteilt: Der kabel kopf ist live und nicht live. Unter normalen Umständen sollte der kabel kopf vor der Installation stromlos und geerdet werden.
2. undntfernen sie die schutzkappe des Prüfpunkts mit einem isolierten Bedienhebel (der Prüfpunkt sollte frei von Flecken und Rost sein).
3. schmierungsanzeige, die an der inneren Oberfläche des stiefels montiert wird.
4. Haken sie das Betriebs loch der Anzeige mit dem isolierten Bedien hebel ein, setzen sie die Anzeige auf den Test punkt des undllbogens topfs und drehen sie sie in die entsprechende Position. Warnung: schmutzige, feuchte oder andere Fehler des Test punkts oder des Indikators können dazu führen, dass der Live-Indikator fäl schlicher weise anzeigt, dass die Leitung nicht mehr an der strom versorgung ist. Bei
Bevor sie die entsprechende Ausrüstung in Betrieb nehmen, sollten sie sicherstellen, dass sie andere von der nationalen Norm genehmigte Prüfmethoden verwenden, um zu überprüfen, ob die Leitung über strom verfügt.
