Wir präsentieren die Leistung, die sichere Betriebsmethoden und die technischen Parameter des HXGN - 12 Mittelspannungsschaltgeräts
1. Umfang der Nutzung

HXGN□-12 (F.R.) Box-Typ fester AC-Metall eingeschlossen schaltgerät (bezeichnet als "Ring-Netzwerk - schrank") ist eine neue Art von schaltgerät für die Renovierung und den Bau von städtischen stromnetzen. Es wird auch als Unterbrechungslaststrom, Kurzschlussstrom und schließschalenstrom im stromversorgungssystem verwendet und eignet sich für AC 3 - 10KV, 50Hz stromverteilungssystem. Es wird weit verbreitet in städtischen stromnetzbau - und Renovierungsprojekten, Industrie - und Bergbauunternehmen, HochhäNutzenrn und öffentlichen Einrichtungen usw. verwendet, Als Ringnetz-stromversorgungseinheit und Endgeräte, die Rolle der stromverteilung, steuerung und schutz der elektrischen Ausrüstung spielen, und kann auch in vorinstallierten Umspannstationen installiert werden. Dieser Ringnetzschrank ist mit einem Vakuumladschalter und einem Federbetriebsmechanismus ausgestattet, der manuell oder elektrisch betrieben werden kann. Der Erdschalter und der Isolationsschalter sind mit manuellen Bedienungsmechanismen ausgestattet, und das komplette satz dieses Ringnetzwerkschränks ist stark und klein. Es besteht keine Verbrennungs - und Explosionsgefahr und verfügt über eine zuverlässige "Fünf-Prävention" - Funktion. Dieser Ring-Netzwerk - schrank entspricht den einschlägigen Bestimmungen von GB3960 "3 ~ 35KV AC Metall schaltgerät" und IEC60420 "Hochspannung AC-Last - schalter-FNutzen - Kombination elektrische Geräte" standard.
2. Modell und seine Bedeutung
HXGN□-12 (F.R.)
H: Ring-Netzwerk
X: Box-Typ
G: stationär
N: Indoor
□: Design seriennummer
12: Nennspannung
(F.R)Load switch-FNutzen - Kombination
3. Normale Nutzungs bedingungen
1. Umgebungstemperatur: -15. 0 ° C 40 ° C;
2. Höhe: 1000m und unterhalb;
3. Luftfeuchtigkeit Bedingungen: Der tägliche Durchschnitt beträgt nicht mehr als 95%, der tägliche Durchschnitt des Wasserdampfdrucks beträgt nicht mehr als 2,2 kPa, der monatliche Durchschnitt beträgt nicht mehr als 90% und der monatliche Durchschnitt des Wasserdampfdrucks beträgt nicht mehr als L 8 kPa;
4. Erdbebenstärke: nicht mehr als 8 Grad;
5. Es gibt keine offensichtlichen schadstoffe wie korrosive oder brennbare Gase.
Hinweis: Wenn die oben genannten normalen Nutzungsbedingungen überschritten werden, kann der Nutzer mit dem Unternehmen verhandeln.
4. Haupttechnische Parameter
seriennummer | Name | Einheit | Daten | |
1 | Bewertete spannung | KV | 12 | |
2 | Nennstrom | Load switchgear | A | 630 |
kombinierte switchgear | 125 | |||
3 | Kurzschlussbrechenden strom | Ka | 31.5 | |
4 | Nennwerte aktive Last Breaking Current | A | 630 | |
5 | Bewertet für kurzfristige standar Current | Ka | 20 | |
6 | Peak standar strom | Ka | 50 | |
7 | Die Nennfrequenz der Leistung ist so eingeschätzt, dass sie spannungsinterphase, Erd/Break | KV | 42/48 | |
8 | Blitzschlag ist resistent gegen spannungsphase, Erd/Break | KV | 75/85 | |
9 | Mechanisches Leben | Times | 10000 | |
10 | Nennbetriebsübergabestrom (kombinierte Geräte) | A | 3150 | |
11 | Wie es funktioniert | Manuell oder elektrisch | ||
12 | schutzniveau | IP3X | ||
5. strukturelle Eigenschaften (as wie in Abbildung 2 und Abbildung 3)
1. strukturelle Leistungsmerkmale
1.1.1 Das Ringnetzschrank hat ein 8MF-Profil und der gesamte Rahmen ist mit Modullöchern B = 2 (tan.
L1.2 Ring-Netzwerk - schrank ist mit FZN21 - 12D Ladschalter oder FZRN21 - 12D sicherung Kombination elektrische Geräte ausgestattet, die einen Isolationsschalter, einen Vakuum-Ladschalter und einen Erdschalter hat, und der Trennschalter und Erdschalter haben offensichtliche Bruch.
1.3 Der Isolationsschalter, der Vakuumladschalter, der Erdschalter und die schranktür verfügen über perfekte und zuverlässige Grab - und Verriegelvorrichtungen, die Fehlbetrieb effektiv verhindern und eine sichere Wartung gewährleisten können.
1.1.4 Es kann sowohl manuell als auch elektrisch betrieben werden.
1. Die schranktür und die Instrumententür des Messschränks L5 sind mit Dichtungsnadeln ausgestattet.
1.1.6 Versicherung Kombination elektrischen schränken und schmelzenröhre mit Feuernadel. Im Falle eines Kurzschlusses trifft die Zündnadel den Ausstoßmechanismus, um schnelles Öffnen und Brechen zu erreichen, was die elektrische Ausrüstung effektiv schützen kann.
1.L 7 Ring Mesh-schrank adoptiert Frontbetrieb, zuverlässige Wandinstallation.
2.„Fünf Prävention" - sperrfunktion
2. 2.1 stromübertragungsbetrieb: Nur wenn die schranktür geschlossen und verschlossen ist und der Erdschalter in die Position "offen" betrieben wird, kann der Lastschalter betrieben werden, um die Position zu schließen.
2.2.2 stromausfallbetrieb: Wenn sich der Lastschalter in der Isolationsposition befindet, kann der Erdschalter geschlossen werden, und wenn sich der Erdschalter in der geschlossenen Position befindet, wird die Isolationsteilung eingefügt, um die schranktür zu öffnen.
2.1. 3 Der Vakuumunterbrecher ist zuverlässig mit dem Isoliermesser verriegelt, und das Isoliermesser und das Erdmesser sind miteinander verbunden und mit der schranktür verriegelt, und die Isoliertrennung ist auch mit der schranktür verriegelt.
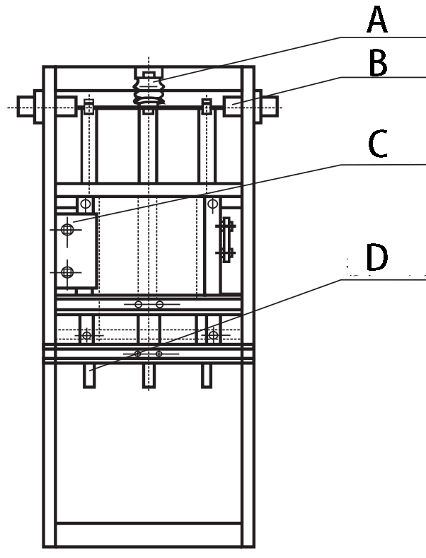
![]() | Fig. 2 A: Isolator B: Durch die Wände C: Betriebsmechanismus D: Grounding switch |
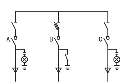
![]() | Fig. 3 A: sicherung (Isolation Knife Gate) B: Mechanismus der Kugelkontrolle C: Load switch D: stromwandler |
6. Das Prinzip der stromversorgung des Ringnetzes
Die Ringnetzstromversorgung < besteht aus drei grundlegenden Einheiten (siehe Abbildung) Die Ein - und Auslassleitungsschränke werden als Ringnetzwerkeinheiten verwendet, die im Falle eines Ausfalls rechtzeitig isoliert werden können, und eine weitere Einheit gewährleistet die kontinuierliche stromversorgung der Transformatorzweige des Benutzers. Das Benutzerschleife-Netzwerk - schrank spielt eine Rolle beim schutz und Isolieren des Transformators, was für die Wartung und Überholung bequem ist. Das Ringnetzwerk-schrank kann willkürlich erweitert werden und kann aus einer Vielzahl von Kombinationsschemaen von Grundgeräten gemäß den Benutzeranforderungen zusammengesetzt werden.
![]() | ||
| Kabel-Eingang - und Ausgang-Leitungsschrank Benutzer-Transformator - Zweigschrank Kabel-Eingang - und Ausgang-Leitungsschrank |
7. Hauptkreislaufschema Diagramm
schema Nummer | 01 | 02 | 03 | 04 | 05 | 06 |
Hauptkreis-schema - Diagramm | ![]() | |||||
Nutzen | Kabel in und aus der Linie | Kabel in und aus der Linie | Kabel in und aus der Linie | Kabel in und aus der Linie | Kabel in und aus der Linie | Kabel in und aus der Linie |
Isolation/Lade / Kombinationsgeräte | GN□- 12D | GN□- 12D | GN□- 12D | FZN21 - 12D | FZN21 - 12D | FZN21 - 12D |
FNutzen | RN3 | RN3 | ||||
Aktueller Transformator | LZZBJ9 | LZZBJ9 | ||||
Festnahme | HY5W | |||||
schema Nummer | 07 | 08 | 09 | 10 | 11 | 12 |
Hauptkreis-schema - Diagramm | ![]() | |||||
Nutzen | Kabel in und aus der Linie | Kabel in und aus der Linie | Kabel in und aus der Linie | Kabel in und aus der Linie | Kabel in und aus der Linie | Kabel in und aus der Linie |
Isolation/Lade / Kombinationsgeräte | FZN21 - 12D | FZN21 - 12D | FZN21 - 12D | FZN21 - 12D | FZN21 - 12D | GN□- 12D |
FNutzen | RN2 | RN2 | RN2 | |||
Aktueller Transformator | LZZBJ9 | LZZBJ9 | LZZBJ9 | LZZBJ9 | ||
spannung Transformator | JDZ | JDZ | JDZ | |||
Festnahme | HY5W | HY5W | HY5W | |||
schema Nummer | 13 | 14 | 15 | 16 | 17 | 18 |
Hauptkreis-schema - Diagramm | ![]() | |||||
Nutzen | Metering Kabel inbound und outbound Linien | Kabel in und aus der Linie | Kabel in und aus der Linie | Kabel in und aus der Linie | Metering Kabel inbound und outbound Linien | Overhead incoming Kabel-Ausgang |
Isolation/Lade / Kombinationsgeräte | FZRN21 - 12 | FZRN21 - 12D | FZRN21 - 12D | FZRN21 - 12D | GN□- 12D | |
FNutzen | RN2 | s□Laj | s□Laj | s□Laj | RN2 | RN3 |
Aktueller Transformator | LZZBJ9 | LZZBJ9 | LZZBJ9 | LZZBJ9 | ||
spannung Transformator | JDZ | JDZ | ||||
schema Nummer | 19 | 20 | 21 | 22 | 23 | 24 |
Hauptkreis-schema - Diagramm | ![]() | |||||
Nutzen | Overhead incoming Kabel-Ausgang | Overhead incoming Kabel-Ausgang | Overhead incoming Kabel-Ausgang | Overhead incoming Kabel-Ausgang | Overhead incoming Kabel-Ausgang | Overhead incoming Kabel-Ausgang |
Isolation/Lade / Kombinationsgeräte | FZRN21 - 12D | FZRN21 - 12D | FZRN21 - 12D | FZRN21 - 12D | FZRN21 - 12D | FZRN21 - 12D |
FNutzen | s□Laj | s□Laj | s□Laj | s□Laj | ||
Aktueller Transformator | LZZBJ9 | LZZBJ9 | LZZBJ9 | LZZBJ9 | ||
spannung Transformator | ||||||
schema Nummer | 25 | 26 | 27 | 28 | 29 | 30 |
Hauptkreis-schema - Diagramm | ![]() | |||||
Nutzen | Kontakt | Kontakt | Messung und Verbindung | Messung und Verbindung | Overhead Line Kontakt | Overhead Line Kontakt |
Isolation/Lade / Kombinationsgeräte | FZRN21 - 12 | FZRN21 - 12D | FZRN21 - 12D | FZRN21 - 12 | ||
FNutzen | s□Laj | RN2 | RN2 | s□Laj | ||
Aktueller Transformator | LZZBJ9 | LZZBJ9 | ||||
spannung Transformator | JDZ | JDZ | ||||
8. Form und Installationsgröße
1. Die Gesamtgröße des Ring-Netzwerk - Kabinetts
![]() | ![]() | Kabinett Breite Richtung |
| Beschreibung: Die Höhe kann gewählt werden | Kabinett Tiefe Richtung |
2. Installationsgröße des Ring-Netzwerk - Kabinetts
![]() |
| Hinweis: Der Kanalstahl sollte zuverlässig geerdet sein |
